ZUHAUSE MIT AUSSICHT UND ABENDSONNE
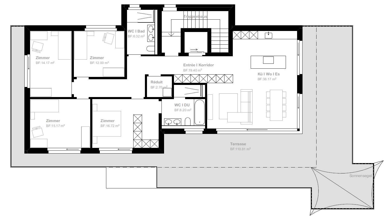
Die Wohnungen bieten eine einladende Atmosphäre mit hellen Räumen, grosszügigem Grundriss und viel Tageslicht. Die traumhafte Aussicht auf den Sempachersee und die Abendsonne schaffen ein Wohngefühl zum Wohlfühlen. Hier geniessen Sie Ruhe, Weitblick und ein Zuhause, das zum Verweilen einlädt.









